Опис
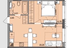
Пропонуємо вашій увазі чудову квартиру в новобудові "Акварель 10" на вулиці Бочарова, розташовану в престижному районі Крижанівка. Ця затишна однокімнатна квартира знаходиться на 5 поверсі 9-поверхового блочно-цегляного будинку, площею 40 кв.м.
Інтер'єр квартири розрахований на комфортне проживання: окрема кухня площею 20 кв.м, простора вітальня площею 17 кв.м та сучасна ванна кімната типу "суміжний". Висота стель становить 2.85 м, що створює відчуття простору і свободи.
Вікна виходять у двір, що забезпечує тихе та спокійне проживання. Опалення здійснюється з дахової котельні. В квартирі встановлені металопластикові вікна, що забезпечує високу теплоізоляцію та енергоефективність.
Будинок буде зданий в 2023 році будівельником СК "Акварель", що гарантує якість та надійність конструкції. Квартира продається від власника за ціною $28500.
Не втрачайте можливість стати власником цієї прекрасної квартири в новому житловому комплексі. Зателефонуйте нам прямо зараз, щоб домовитись про перегляд та отримати додаткову інформацію.















































































