- Головна
- Квартири
- 2-кімнатні
- м.Одеса
- квартира Прохоровська вул








































квартира Прохоровська вул
Опис
Продаж двокімнатної квартири в ЖК "Прохоровський квартал" від БК Стікон.
Закрита територія, під охороною.
ЖК розташований біля Михайлівського скверу на вул. Прохорівській/Комітетській.
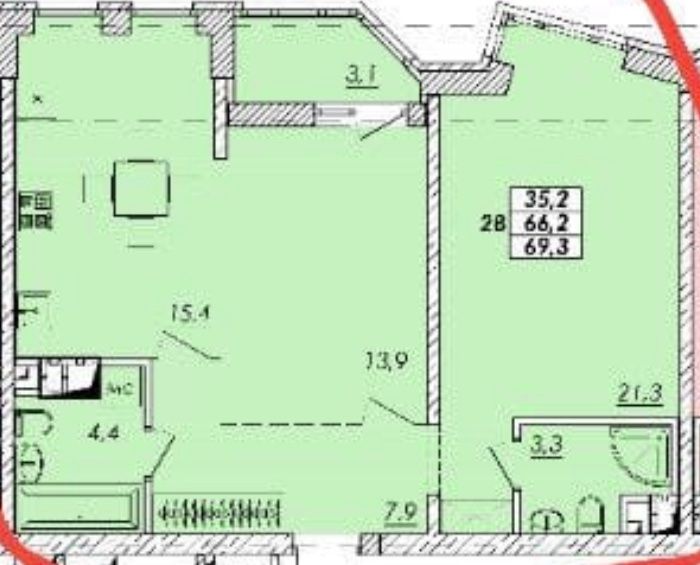
Велика двокімнатна квартира загальною площею- 69 м.кв., що розташована на ідеальному 13 поверсі.
Красивий вид на вул Комітетську, окремий вхід для секції з вул Комітетська.
Правильне планування: дві окремі спальні 22 та 14 кв.м. одна з відкритою панорамною заскленою лоджією, роздільний санвузол, кухня 15 м.
Чудове розположення: у найближчій доступності знаходяться дитячі садки, школи, Михайлівський ліцей, Михайлівський/Прохорівський сквер, бювет, супермаркети -Таврія, Обжора, Копійка, АТБ.
Підземний паркінг та паркові місця біля ЖК
Зручне розташування та транспортна розв'язка, до центру 7 хв, до Привозу/ЖД вокзалу 10-15 хвилин.
Дитячий та спортивний майданчики на території комплексу, зони відпочинку.
















































































































