- Головна
- Квартири
- 3-кімнатні
- м.Одеса
- Квартира на Днепрдорога ул.




$72 000
($742/м²)
ID 32590
Квартира на Днепрдорога ул.
Пересипський (Сув.), Одеса, Одеська область
Знижена ціна
Опис
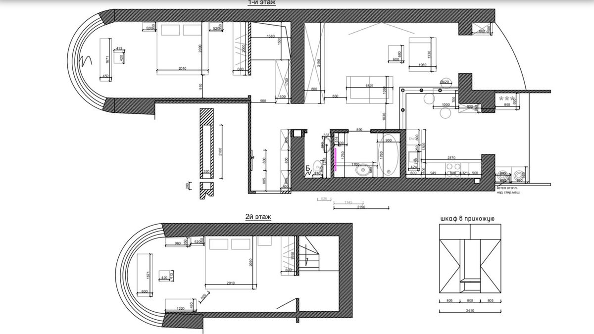
В продаже двухуровневая 3-х комнатная квартира 3 и 4 этажи / 10эт. дома,общей площадью 97м2 в новом сданном доме ЖК Теплый дом.Кухня студия 35м2. Квартира от строителей. По всей квартире разведена проводка, поменяны везде окна(делали для себя) Панорамное остекление.
Характеристики
Локація на мапі
Запис на перегляд об’єкту
З вами зв'яжеться спеціаліст з нерухомості, підтвердить обраний час перегляду, організує відвідування пропозиції та проведе вам екскурсію.






































































